17 E. University Ave., #410, CHAMPAIGN, IL 61820
17 E. University Ave., #410, CHAMPAIGN, IL 61820
The Coppertree
Live life to the fullest at The Inman in Downtown Champaign! Located just a block from the Illinois Terminal this location can not be beat. With concierge services at your fingertips, you'll have more time in your day to explore downtown and UIUC's campus.
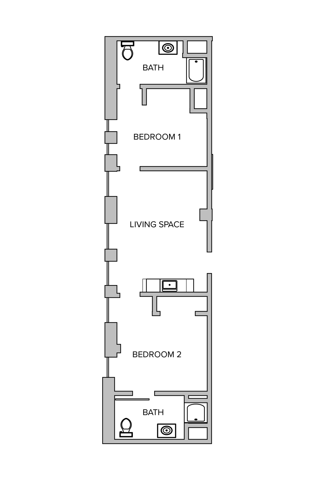
The Coppertree floorplan features two bedrooms with two full baths, a living space, and a kitchenette.
The Coppertree floorplan features two bedrooms with two full baths, a living space, and a kitchenette.
Contact us:
















